| Aufbau | Anhänger |
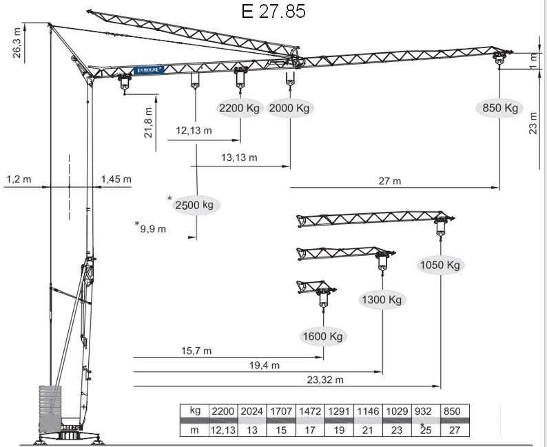
| max. Hakenhöhe (m) bei Ausladung 27 m |
23,00 |
| Turmhakenhöhe (m) | 21,80 |
| max. Tragkraft (kg) bis 12,13 m | 2.200 |
| max. Spitzenlast (kg) | 850 |
| max. Ausladung (m) | 27,00 |
| Gewicht (kg) | 25200 |
| Transportlänge (m) | 13,25 |
| Transportbreite (m) | 2,45 |
| Transporthöhe (m) | 3,00 |
| Antrieb | 230V/400V |
| Abstützbreite (m) | 3,60 x 3,60 |
| Schwenkradius (m) | 1,95 |
| Ausstattung: |
|
| Optionales Zubehör: |
|





